дом, 2-я Островская
6 Таксопарк, Кировский округ
Продам дом в Омске, 90 кв.м, 8 сот
Цена на момент удаления: 2 560 000
Начальная цена: 3 100 000
Характеристики:
Объект
дом
Улица
ул. 2-я Островская
Ориентир
6 Таксопарк
Округ
Кировский
Остановка
Пос. Большая Островка
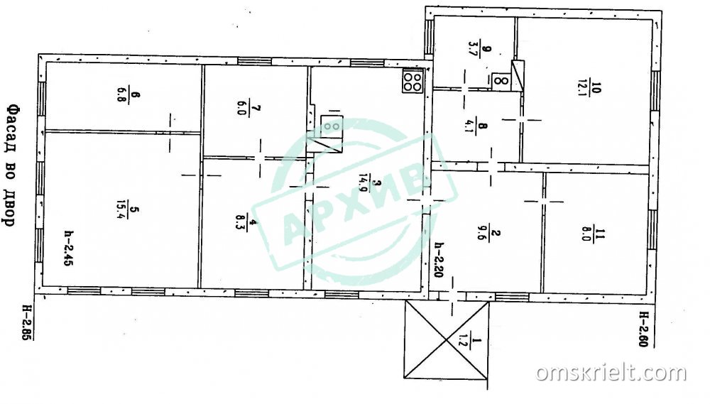
Площадь
90 / 50 / 10
Этаж/Этажность
1/1
Земельный участок
8 сот
Санузел
совмещенный санузел, душевая кабина
Материал стен
каркасно-кирпичный
Год постройки
1979
Обмен
Рассмотрю варианты обмена
Состояние/Отделка
хорошее состояние
Планировка
смежно-изолированные комнаты
баня
Да
гараж
Да
хозяйственные постройки
Да
веранда
Да
терраса
Да
погреб
Да
счетчики
Да
интернет
Да
газоснабжение
Да
электричество
Да
центральная канализация
Да
центральное отопление
Да
зимний водопровод
Да
летний водопровод
Да
газовое отопление
Да
окна ПВХ
Да
металлическая дверь
Да
двойная дверь
Да
замена сантехники
Да
замена труб
Да
участок в собственности
Да
документы готовы
Да
вариант подобран
Да
торг
Да
ипотека
Да
Описание:
Обратите внимание на благоустроенный дом на берегу притока р. Иртыш, фактически в центре города микрорайон Большая Островка ( тихий и комфортный для проживания, рядом Птичья Гавань). Преимущества данного объекта : 3 комнаты +кухня, просторный двор, теплый и рубленный дом с газовым отоплением + централизованный водопровод и канализация, дополнительно котел на твердом топливе, вместительная кладовая, высокое и сухое место, широкая улица, земля в собственности с межеванием, ухоженный огород с многолетними посадками, добротный высокий гараж, есть место под баню, отличные хозпостройки, сухой и вместительный подпол со стеллажами, на улице добротный погреб. Данный объект это соответствие цены и качества ( лучшего дома по данной цене нужно очень долго искать)! Звоните, очень быстро организуем показ и выход на сделку.
История изменения цены:
От начальной цены: -540 000 руб.
| Дата | Цена | Разница |
|---|---|---|
| 04.09.2019 | 2 560 000 руб. | -40 000 |
| 30.08.2019 | 2 600 000 руб. | -50 000 |
| 19.06.2019 | 2 650 000 руб. | -250 000 |
| 23.04.2019 | 2 900 000 руб. | -200 000 |
| 03.04.2019 | 3 100 000 руб. | 0 |
Контакты:
Объявление удалено, контакты продавца скрыты.
Опубликовано: 03-04-2019 10:48
Удалено : 09-01-2020 11:24
Просмотров: 828
