2-комн., Октябрьская, 98
к-тр Маяковский - Кемеровская, Центральный округ
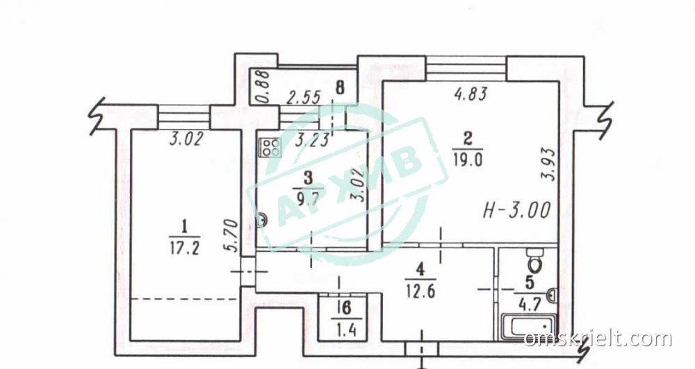
Продам 2-комнатную квартиру в Омске, 65 кв.м
Цена на момент удаления: 3 750 000
Начальная цена: 3 750 000
Характеристики:
Объект
2-комн. квартира
Улица
ул. Октябрьская
Дом
98
Ориентир
к-тр Маяковский - Кемеровская, р-н ул.Орджоникидзе
Округ
Центральный
Остановка
Ул. Яковлева
Площадь
65 / 36 / 10
Этаж/Этажность
3/10
Балкон/Лоджия
лоджия застеклена
Санузел
совмещенный санузел
Материал стен
кирпичный
Год постройки
1996
Состояние/Отделка
отличное состояние
Планировка
изолированные комнаты
домофон
Да
интернет
Да
окна ПВХ
Да
двойная дверь
Да
замена сантехники
Да
встроенная мебель
Да
встроенная бытовая техника
Да
ламинат
Да
чистая продажа
Да
свободно
Да
документы готовы
Да
ипотека
Да
Описание:
На чистой продаже просторная двухкомнатная квартира в элитном доме в районе улицы Орджоникидзе. Квартира очень светлая и теплая. Окна выходят на восток. Удачная планировка: просторный коридор, две большие изолированные комнаты, просторная кухня с выходом на лоджию, большая хозяйственная комната. В спальне вместительный шкаф-купе. Состояние квартиры хорошее. Потолок, стены и пол выровнены, на полу ламинат. Высота потолка 3м, окна ПВХ, лоджия застеклена, отделана деревянной вагонкой. В ванной комнате современный кафель, сантехника в отличном состоянии. Установлена добротная входная дверь. Чистый подъезд. Доброжелательные соседи. Дом расположен в районе с развитой инфраструктурой и транспортной доступностью. В шаговой доступности находятся детский сад № 244, гимназия № 85, лицей № 66, магазины , Центральный рынок, остановка общественного транспорта Октябрьская.
Контакты:
Объявление удалено, контакты продавца скрыты.
Опубликовано: 20-06-2019 15:43
Удалено : 14-01-2020 12:42
Просмотров: 654
