3-комн., Козицкого поселок, 3
пос. Козицкого, Центральный округ
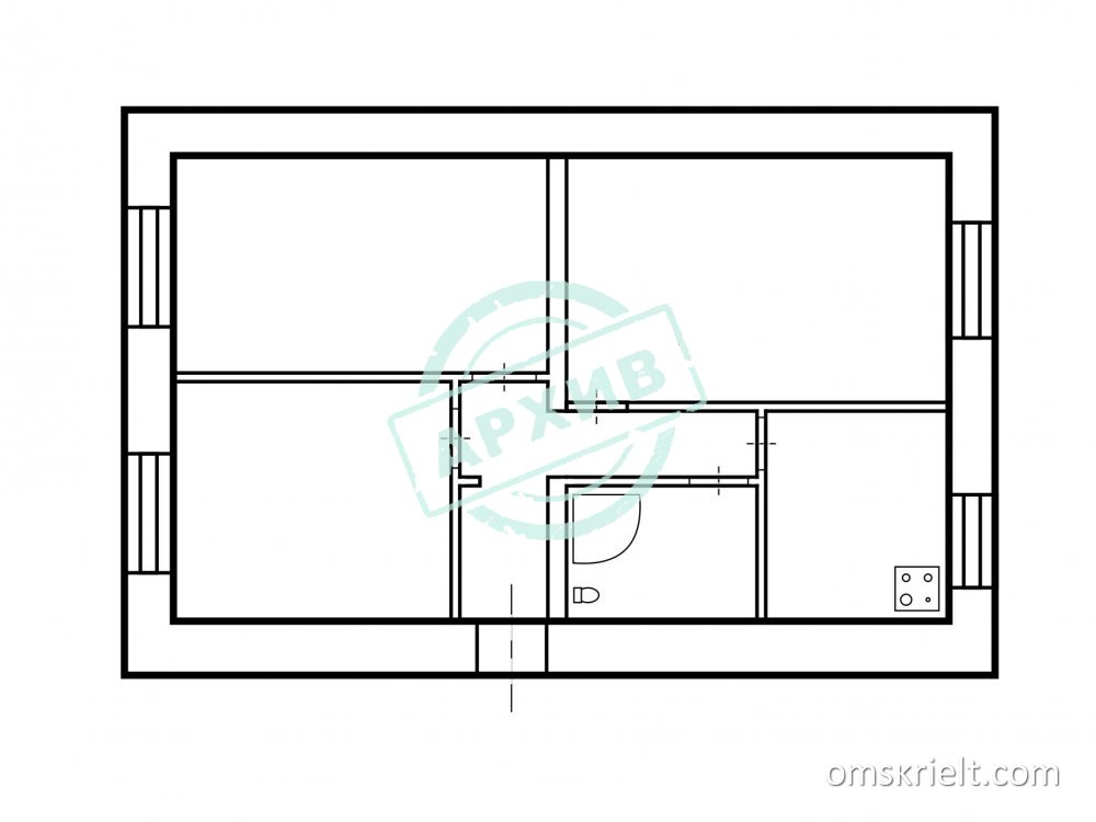
Продам 3-комнатную квартиру в Омске, 74 кв.м
Цена на момент удаления: 5 000 000
Начальная цена: 5 200 000
Характеристики:
Объект
3-комн. квартира
Улица
ул. Козицкого поселок
Дом
3
Ориентир
пос. Козицкого
Округ
Центральный
Площадь
74 / 55 / 9
Этаж/Этажность
2/4
Балкон/Лоджия
без балкона
Санузел
совмещенный санузел
Материал стен
кирпичный
Год постройки
1959
Состояние/Отделка
евроремонт
Планировка
изолированные комнаты
счетчики
Да
окна ПВХ
Да
металлическая дверь
Да
замена сантехники
Да
замена труб
Да
ламинат
Да
чистая продажа
Да
свободно
Да
документы готовы
Да
торг
Да
Описание:
Компания «Квадрат» предлагает приобрести 3-х комнатную квартиру на 2-м этаже в кирпичном доме в пос. Козицкого. Общая площадь 74, 6 кв.м. Квартира светлая, теплая, после капитального ремонта, заменена вся эл.проводка, также заменены трубы отопления и радиаторы, установлены новые качественные межкомнатные двери, входная дверь новая металлическая, потолки натяжные, на полу в комнатах и кухне ламинат, в прихожей кафель, везде окна ПВХ. В сан.узле современный кафель, полы с подогревом, душевая кабина. Есть некоторые незаконченности в ремонте, за счет чего реальному покупателю возможен хороший торг. Отличная планировка, все комнаты изолированные, высота потолков 2, 8 м, сан.узел совмещён. Без балкона. В шаговой доступности вся необходимая инфраструктура, школа, 2 дет.сада, ледовый дворец им.Фетисова, магазины «Победа», «Магнит у дома», рынок восточный, остановка общественного транспорта. Квартира свободная, на чистой продаже, ключи на сделке. Реальному покупателю хороший торг. Звоните, покажем в любое удобное время.
История изменения цены:
От начальной цены: -200 000 руб.
| Дата | Цена | Разница |
|---|---|---|
| 06.11.2022 | 5 000 000 руб. | -200 000 |
| 11.10.2022 | 5 200 000 руб. | 0 |
Контакты:
Объявление удалено, контакты продавца скрыты.
Опубликовано: 11-10-2022 18:53
Удалено : 28-02-2023 12:43
Просмотров: 237
