доля, 20-го Партсъезда, 64
Советский исполком - Садко, Центральный округ
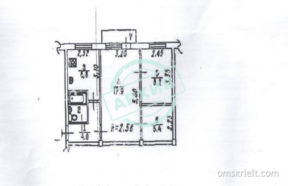
Продам долю комнату в Омске, 45 кв.м
Цена на момент удаления: 1 400 000
Начальная цена: 1 400 000
Характеристики:
Объект
доля
Улица
ул. 20-го Партсъезда
Дом
64
Ориентир
Советский исполком - Садко, гор. Нефтяников
Округ
Центральный
Остановка
Маг. Садко
Комнат
1/2 доли квартиры
Площадь
45 / 27 / 6
Этаж/Этажность
2/5
Балкон/Лоджия
балкон
Материал стен
панельный
Год постройки
1969
Описание:
Продается 1/2 доля в 2-х комнатной квартире 45/27/6 . Район с хорошо развитой инфраструктурой. Звоните ответим на все ваши вопросы.
Контакты:
Объявление удалено, контакты продавца скрыты.
Опубликовано: 03-07-2024 15:56
Удалено : 25-01-2026 15:53
Просмотров: 262
