коттедж, Светлая, 6
Усть-Заостровка, Омский район
Продам коттедж в Омской области, 198 кв.м, 15 сот
Цена на момент удаления: 6 950 000
Начальная цена: 6 950 000
Характеристики:
Объект
коттедж
Улица
ул. Светлая
Дом
6
Нас. пункт
Усть-Заостровка
Район
Омский район
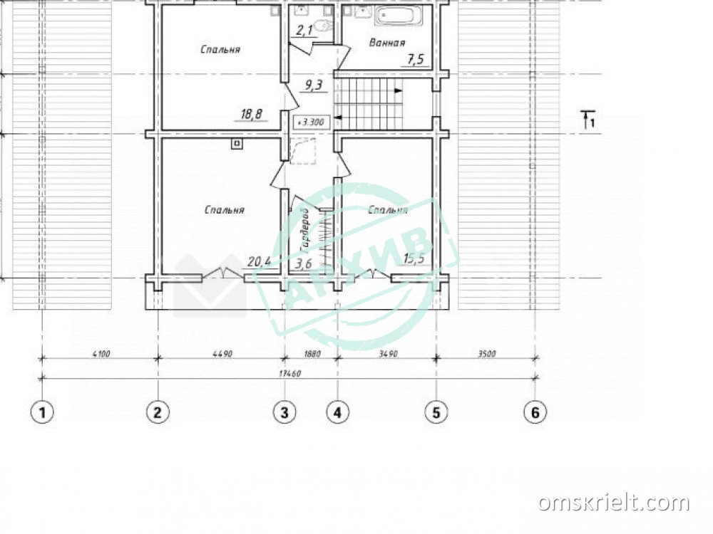
Площадь
198 / 80 / 20
Земельный участок
15 сот
Год постройки
2018
Состояние/Отделка
косметический ремонт
веранда
Да
электричество
Да
ипотека
Да
Описание:
Арт. 98202504 АН "Ледон" предлагает к приобретению просторный загородный дом в престижном живописном месте Омского района в с. Усть-Заостровка по улице Светлая. Благоустроенный бревенчатый дом ручной рубки на сваях, утепление межвенцовых швов произведено джутом. Отопление альтернативное ( один котел на твёрдом топливе плюс электрокотел) канализация септик. Водоснабжение из скважины. Подготовлено место для строительства бани: установлены винтовые сваи, септик. Газовые коммуникации проходят на границе участка. На первом этаже кухня-столовая, гостиная, кабинет, санузел, котельная. Второй этаж три спальни, ванная комната, гардеробная. Земельный участок правильной формы. Межевание оформлено. Чистый воздух, близость р. Иртыш, наличие развитой инфраструктуры, хорошая транспортная доступность. Превосходный дом из экологического материала для загородной жизни и комфортного отдыха ждет своего покупателя. Земля и дом оформлены в собственность. Свободная продажа
Контакты:
Объявление удалено, контакты продавца скрыты.
Опубликовано: 18-03-2025 11:54
Удалено : 18-04-2025 00:28
Просмотров: 106
