2-комн., Красный Путь, 143/5
ост.Сибзавод-гор. Водников, Советский округ
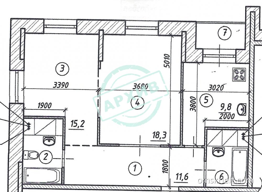
Продам 2-комнатную квартиру в Омске, 63.1 кв.м
Цена на момент удаления: 10 250 000
Начальная цена: 10 700 000
Характеристики:
Объект
2-комн. квартира
Улица
ул. Красный Путь
Дом
143/5
Ориентир
ост.Сибзавод-гор. Водников
Округ
Советский
Площадь
63 / 28 / 15.20
Этаж/Этажность
14/17
Балкон/Лоджия
лоджия
Санузел
совмещенный санузел
Год постройки
2016
Состояние/Отделка
евроремонт
ипотека
Да
Описание:
Ипотека 12.25% от компании «Самолет Плюс».. Компания «Самолет Плюс» предлагает к продаже квартиру на четырнадцатом этаже семнадцатиэтажного монолитного дома 2016 года постройки. Во дворе дома размещена детская площадка. Квартира с отличной планировкой, которая включает в себя кухню-гостиную и отдельную спальную комнату. В квартире выполнен дизайнерский ремонт с использованием качественных материалов. Натяжной потолок разного уровня с точечным освещением, в комнатах на полу ламинат повышенной прочности, в ванной комнате выложена плитка, установлена инсталляция, ванна с гидромассажем. Все приборы учета опломбированы и прошли поверку. Во всех комнатах алюминиевые радиаторы отопления, для поддержания комфортной температуры в помещениях установлен кондиционер. При продаже в квартире остается следующая мебель и бытовая техника: кухонный гарнитур, шкаф-купе, варочная панель, духовой шкаф, посудомоечная машина. В шаговой доступности размещены все социально значимые объекты: магазины, кафе, больница, в радиусе 150 метров детский сад № 279, до остановки «городок Водников» 500 метров.. Помощь в оформлении ипотеки, работа с банками партнерами, предоставление дополнительных скидок. Арт. 117091231
История изменения цены:
От начальной цены: -450 000 руб.
| Дата | Цена | Разница |
|---|---|---|
| 02.12.2025 | 10 250 000 руб. | -650 000 |
| 23.10.2025 | 10 900 000 руб. | +200 000 |
| 17.09.2025 | 10 700 000 руб. | 0 |
Контакты:
Объявление удалено, контакты продавца скрыты.
Опубликовано: 17-09-2025 16:17
Удалено : 17-12-2025 20:08
Просмотров: 74
