помещение, Гусарова проезд, 115
ТЦ Омский - Агрегатный завод, Центральный округ
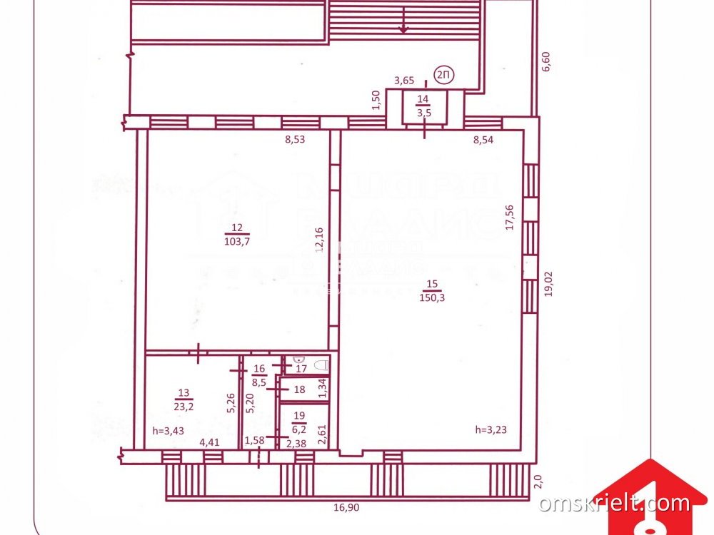
Сдам помещение в Омске, 295.6 кв.м
120 000 /мес.
Характеристики:
Объект
помещение
Улица
ул. Гусарова проезд
Дом
115
Ориентир
ТЦ Омский - Агрегатный завод
Округ
Центральный
Площадь
295.60 м2
Этаж/Этажность
1/5
Состояние/Отделка
требуется ремонт
Описание:
Код объекта: 863753. Компания МИАРД Владис отдел коммерческой недвижимости предлагает в аренду помещение свободного назначения на пр. Гусарова, общая площадь помещения 295, 6 кв.м, первый этаж, отдельный вход, высокий трафик, центральные коммуникации, жилой массив. Возможно использовать по магазин, офис, услуги, магазин-склад.
История изменения цены:
От начальной цены: 0 руб./мес.
| Дата | Цена | Разница |
|---|---|---|
| 07.11.2025 | 120 000 руб./мес. | 0 |
Контакты:
Компания: Миард-Владис
Опубликовано: 03-10-2023 12:18
Обновлено : 07-11-2025 03:17
