1-комн., Бульварная, 13
р-н Ипподрома, Октябрьский округ
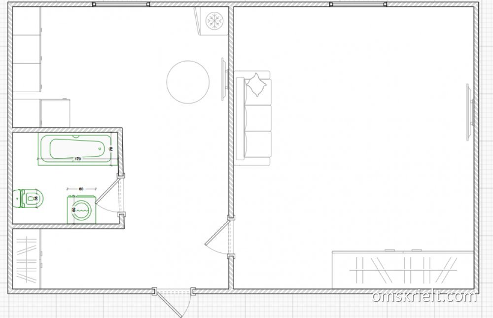
Продам 1-комнатную квартиру в Омске, 33.7 кв.м
4 020 000
Характеристики:
Объект
1-комн. квартира
Улица
ул. Бульварная
Дом
13
Ориентир
р-н Ипподрома
Округ
Октябрьский
Площадь
34 / 17 / 6.60
Этаж/Этажность
6/9
Санузел
совмещенный санузел
Состояние/Отделка
евроремонт
ипотека
Да
Описание:
Квартира с идеальным ремонтом по ставке всего 12, 25% Квартира после капитального ремонта. Интерьер продуман до мелочей, обеспечивая эстетику и функциональность :Напольное покрытие: в комнате ламинат высокого качества ; в санузле , кухне и прихожей плитка из керамогранита.Стены украшают свежие пастельные тона современных качественных обоев, формирующих мягкую и гармоничную обстановку.Полностью обновлена вся инженерная инфраструктура: замена труб, электрическая проводка и коммуникации обеспечивают стабильную эксплуатацию всех бытовых приборов.Во всех комнатах установлены современные радиаторы отопления, обеспечивающие равномерное распределение тепла.Потолки украшены эффектными натяжными конструкциями с интегрированными осветительными устройствами последнего поколения.Межкомнатные двери изготовлены из надежных материалов, гармонично вписываясь в общий стиль оформления.Входная дверь выполнена из высокопрочных материалов, защищающих владельцев от посторонних звуков и несанкционированного проникновения. Помимо качественного ремонта, новый владелец получит дополнительное преимущество — кухню, оборудованную мебелью, шкаф-купе. Район расположения отличается удачной инфраструктурой: близко расположена остановка городского транспорта, доступные детские сады, школы, многочисленные магазины, аптеки, рестораны и развлекательные заведения, среди которых кофейни и салоны красоты. Легко купить:1 взрослый собственник Одобрение ипотеки по ставке 12, 25% Юридическая чистота сделки гарантирована! Арт. 126477250
Контакты:
Компания: Самолет Плюс
Опубликовано: 24-11-2025 19:49
Обновлено : 25-11-2025 20:13
Просмотров: 1
