помещение офис, Москаленко, 137/2
Кировский округ
2 500 000 /мес.
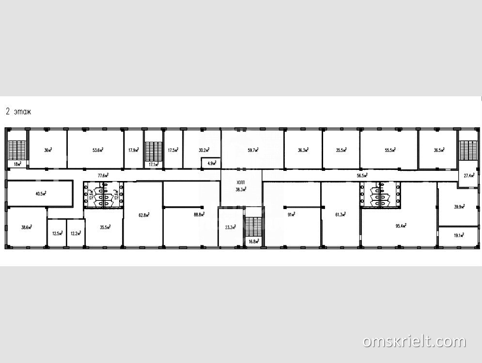
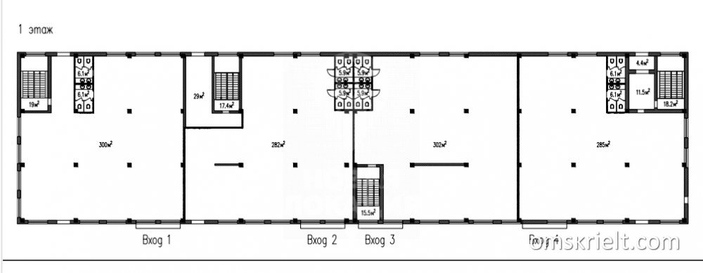
500 руб./м2 Сдам офис помещение в Омске, 5000 кв.м
ул. Москаленко, 137/2, Кировский округ
2 500 000 /мес.
500 руб./м2 Предложить свою цену
Характеристики:
Объект
помещение офис
Улица
ул. Москаленко
Дом
137/2
Округ
Кировский
Площадь
5000 м2
Этаж/Этажность
4/4
парковка
Да
История изменения цены:
От начальной цены: 0 руб./мес.
| Дата | Цена | Разница |
|---|---|---|
| 25.12.2025 | 2 500 000 руб./мес. | 0 |
Контакты:
Компания: Новая Локация
Опубликовано: 25-12-2025 13:22
Обновлено : 08-02-2026 14:41
Просмотров: 39
Динамика изменения
