2-комн., 70 лет Октября, 12
10-й МКР (Тополиный), Кировский округ
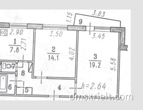
Продам 2-комнатную квартиру в Омске, 52.8 кв.м
7 300 000
Характеристики:
Объект
2-комн. квартира
Улица
ул. 70 лет Октября
Дом
12
Ориентир
10-й МКР (Тополиный), 10, 11, 12 МКР
Округ
Кировский
Площадь
53 / 33 / 7.80
Этаж/Этажность
6/9
Балкон/Лоджия
балкон
Санузел
раздельный санузел
Год постройки
1987
Состояние/Отделка
евроремонт
ипотека
Да
Описание:
Данная квартира подходит под ипотечную ставку 12, 25% ! На продажу выставлена замечательная квартира, с хорошей аурой и приятной обстановкой в одной из лучших локаций левого берега- это микрорайон Тополиный! В квартире остается добротная мягкая мебель, турник, качественный кухонный гарнитур, прихожка со шкафом в коридоре. Остальная мебель и люстры по договоренности. Квартира теплая и солнечная. Вид из окна- это панорама на город днем и огни большого города ночью! Дом и подъезд в хорошем состоянии, новый лифт. Приватный двор, чистый и зеленый летом, авто паркуются вдоль дома во дворе. Инфраструктура очень развита! Все образовательные учреждения, магазины, спортивные, торговые и развлекательные комплексы в шаговой доступности! Возможен обмен на 3х комнатную квартиру в кирпичном, монолитно-кирпичном доме с доплатой. Арт. 129616485
Контакты:
Компания: Самолет Плюс
Опубликовано: 06-02-2026 09:18
Обновлено : 06-02-2026 20:04
