3-комн., 20 лет РККА, 11
СКК Блинова, Центральный округ
Продам 3-комнатную квартиру в Омске, 71 кв.м
5 160 000
Характеристики:
Объект
3-комн. квартира
Улица
ул. 20 лет РККА
Дом
11
Ориентир
СКК Блинова, р-н ул. Красных Зорь
Округ
Центральный
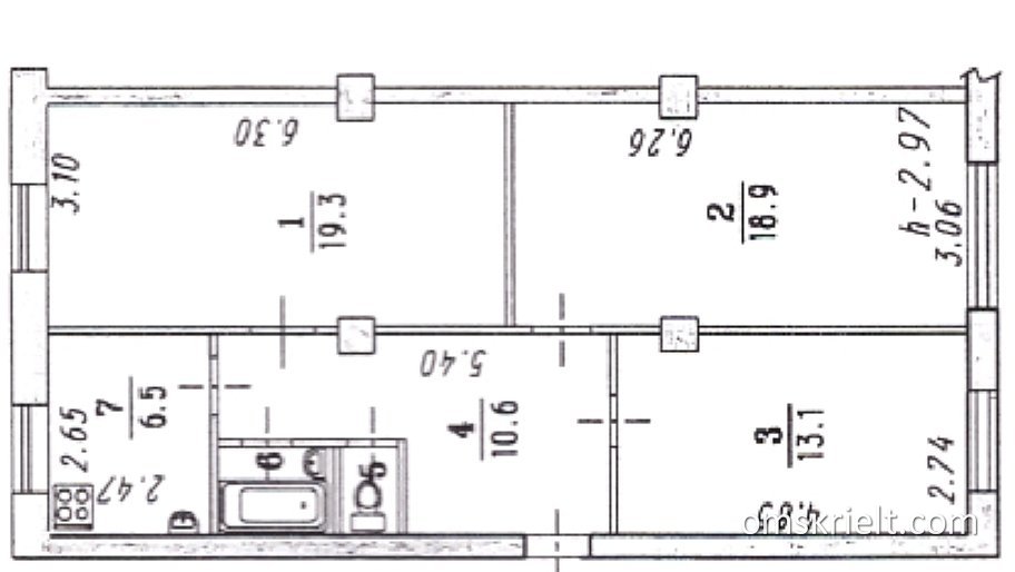
Площадь
71 / 51 / 6
Этаж/Этажность
2/3
Балкон/Лоджия
без балкона
Санузел
раздельный санузел
Материал стен
кирпичный
Год постройки
1950
Планировка
изолированные комнаты
чистая продажа
Да
документы готовы
Да
Описание:
На чистой продаже хорошая полнометражная 3-комнатная квартира, три просторные изолированные комнаты ( 19, 3+18, 9+13, 1 ) на две стороны, высокие потолки 2, 97 м, отличная планировка, квартира теплая и светлая, большой коридор. Тихий центр, 3 минуты до СКК Иртыш, 10 минут до парка Культуры и Отдыха. Дом кирпичный, крепкий, поменяна крыша и коммуникации, в подъезде сделан ремонт, хорошие соседи. Во дворе детский сад. Документы готовы, без долгов, обременений и проблем!
Контакты:
Компания: Частное лицо
Опубликовано: 17-02-2026 16:32
Обновлено : 17-02-2026 16:32
Просмотров: 5
