1-комн.
Ленинский округ
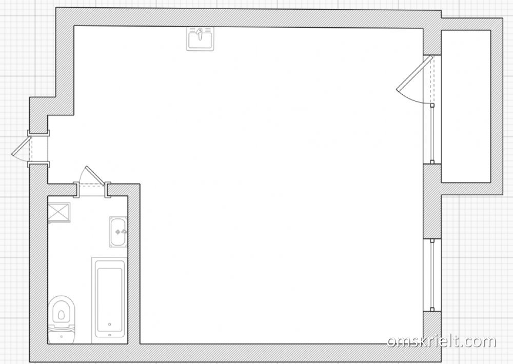
Продам 1-комнатную квартиру в Омске, 44.87 кв.м
4 400 000
Характеристики:
Объект
1-комн. квартира
Округ
Ленинский
Площадь
45 / 20 / 18.20
Этаж/Этажность
4/11
Балкон/Лоджия
балкон
Санузел
совмещенный санузел
Год постройки
2022
Состояние/Отделка
требуется ремонт
ипотека
Да
Описание:
Это уникальная возможность создать квартиру своей мечты с нуля! Вы получаете полную свободу в выборе дизайна, материалов и планировочных решений, не переплачивая за чужой ремонт. Идеальный вариант для тех, кто хочет воплотить свои идеи в жизнь и обустроить пространство по собственному вкусу и потребностям. Квартира расположена в развитом районе с удобной транспортной развязкой и развитой инфраструктурой. В шаговой доступности находятся магазин Пятёрочка, аптеки, школы, Детский сад № 396 и остановки общественного транспорта, что делает этот вариант привлекательным для любого покупателя. Во дворе дома есть парковочные места и детская площадка. Установлены камеры видеонаблюдения по периметру территории. Не упустите шанс приобрести жилье, которое станет вашим идеальным пространством, полностью соответствующим вашим представлениям о комфорте и стиле. Позвоните прямо сейчас и запишитесь на просмотр квартиры! Гарантия юридической чистоты сделки от компании! Звоните! Записывайтесь на показ объекта прямо сейчас. Рады будем ответить на все ваши вопросы с 9:00 до 21:00. Арт. 131911089
Контакты:
Компания: Самолет Плюс
Опубликовано: 24-02-2026 16:07
Обновлено : 24-02-2026 20:01
Просмотров: 2
