коттедж
Кировский округ
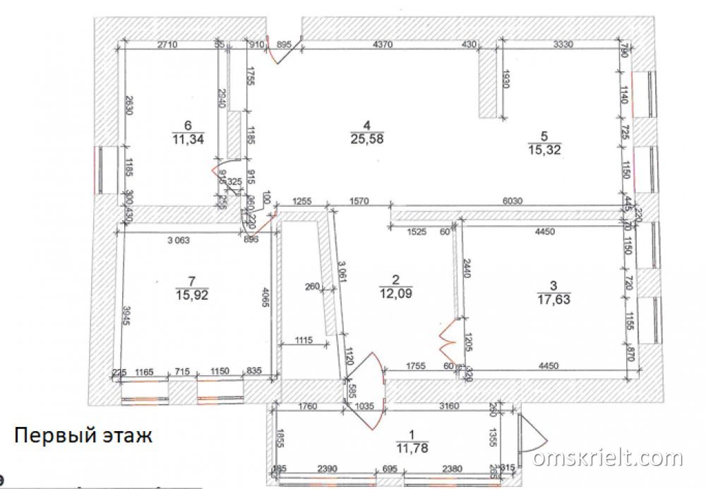
Продам коттедж в Омске, 185 кв.м, 7.65 сот
17 900 000
Характеристики:
Объект
коттедж
Округ
Кировский
Площадь
185 / 117 / 15.32
Земельный участок
7.65 сот
Год постройки
2005
Состояние/Отделка
дизайн-проект
газоснабжение
Да
электричество
Да
ипотека
Да
Описание:
Ипотека от 12, 25% Компания «Самолет Плюс» предлагает к продаже дом 185м2, земельный участок 7.65сотки. Место расположения объекта: город Омск, м-н Чукреевка. Общая площадь участка 7.65соток - межевание проведено, заведены коммуникации: электроэнергия, водопровод центральный, канализация выгребная яма 7м3, газ. Разрешенное использование – ИЖС. На участке размещен: двухэтажный дом, гараж, баня, летняя кухня с мангальной зоной. Придомовая территория и двор в отличном состоянии, дорожки вымощены тротуарной плиткой. На участке высажено большое количество декоративных, плодово-ягодных и садовых посадок. Территория дома огорожена забором с откатными автоматическими воротами на территорию. Установлено видеонаблюдение по периметру. Дом 2005 года постройки, общая площадь 185м2, двухэтажный, фундамент ленточный, стены - кирпич, крыша - металлопрофиль, дом обшит маталлосайдингом, окна ПВХ, высота потолка 2.9м, два вида отопления (газовое, электрическое), центральный водопровод, локальная канализация, установлен бойлер для подогрева воды. Имеется цоколь, в нем находится овощехранилище. В доме выполнен дизайнерский ремонт, натяжной потолок разного уровня с точечным освещением, в комнатах на полу ламинат повышенной прочности, в остальных помещениях плитка (санузел, коридор, кухня). Первый этаж 97.88м2, размещена просторная гостиная, кухня, спальная комната, детская комната, санузел, теплый переход в сауну и на летнюю кухню и в гараж. Второй этаж 57.9м2 гостевая комната, кабинет, комната для отдыха, санузел. При продаже коттеджа остается следующая мебель и бытовая техника: кухонный гарнитур, встроенная бытовая техника ( духовой шкаф, газовая плита, посудомоечная машина), обеденный стол и стулья. В детской комнате остается стенка, письменный стол, в спальной комнате и в коридоре на первом этаже, остается все, что Вы видите на фото. В шаговой доступности размещены все социально значимые объекты: ТРЦ «Мега», гипермаркет «Лемана Про», кафе, аптеки, почта, остановка общественного транспорта 1-й Микрорайон. Арт. 131915535
Контакты:
Компания: Самолет Плюс
Опубликовано: 24-02-2026 16:41
Обновлено : 24-02-2026 20:15
Просмотров: 2
